都城市 蓑原B-13号(売買 新築一戸建て) | 都城市蓑原町 |

都城市 蓑原B-13号 | 都城市蓑原町の不動産物件

■ご成約をいただいた方にヤマダポイント最大10万ポイントをプレゼント!!!
ポイントでお好きな家電をGETできちゃいます♪♪♪
【新築一戸建て】 新築
価格 2,630万円 (税込)
日豊本線 五十市駅 徒歩23分
スマホ表示
物件コード:121252
所在地 建物面積
土地面積
間取り 築年月
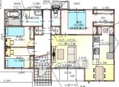
宮崎県都城市蓑原町 79.70m2
211.84m2
3LDK 2026/06

物件基本情報

物件種目 新築一戸建て
物件名称 都城市 蓑原B-13号
所在地 宮崎県都城市蓑原町
交通
日豊本線 五十市駅 徒歩23分
階数 1階建
建物構造 木造
建ぺい率/容積率 50% / 100%
駐車場 -
学校 -
ヤマダ不動産 都城店
Tel0986-57-7788
お気軽にお問い合わせください。

周辺地図

地図を表示中...
ストリートビュー未対応エリアです。

物件詳細情報

物件用途 居住用 地目 その他
間取り詳細 - 都市計画 -
建物向き - 用途地域 指定なし
土地面積基準 公簿 接道 -
土地権利 所有権 私道面積 -
借地条件 - 道路位置指定 -
地代 - 不適合接道 -
建築確認番号 第12508210号 セットバック -
現況 - 国土法届出 不要
引渡時期 期日指定 (2026年6月下旬) 取引態様 仲介
設備その他 -
特記事項 -
備考 -
情報更新日 2026/04/04 広告有効期限 2026/04/18
担当者 高橋
電話でお問い合わせ
ヤマダ不動産 都城店 店舗情報
[所在地] 宮崎県都城市吉尾町1番地1 ヤマダデンキ テックランド都城店 1階
[営業時間] 10:00~19:00
[担当] 高橋
Tel0986-57-7788
お気軽にお問い合わせください。