都城市高城町穂満坊 (現況販売)(売買 中古一戸建て) | 都城市高城町穂満坊 |

都城市高城町穂満坊 (現況販売) | 都城市高城町穂満坊の不動産物件

■ご成約をいただいた方にヤマダポイント最大10万ポイントをプレゼント!!!
ポイントでお好きな家電をGETできちゃます♪♪♪
【中古一戸建て】
価格 2,500万円 (税込)
日豊本線 山之口駅 徒歩52分
スマホ表示
物件コード:104152
所在地 建物面積
土地面積
間取り 築年月
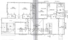
宮崎県都城市高城町穂満坊 101.65m2
365.41m2
4LDK 2019/06

物件基本情報

物件種目 中古一戸建て
物件名称 都城市高城町穂満坊 (現況販売)
所在地 宮崎県都城市高城町穂満坊
交通
日豊本線 山之口駅 徒歩52分
階数 1階建
建物構造 木造
建ぺい率/容積率 - / -
駐車場 -
学校 -
ヤマダ不動産 都城店
Tel0986-57-7788
お気軽にお問い合わせください。

画像・写真

周辺地図

地図を表示中...
ストリートビュー未対応エリアです。

物件詳細情報

物件用途 居住用 地目 その他
間取り詳細 - 都市計画 -
建物向き - 用途地域 指定なし
土地面積基準 公簿 接道 -
土地権利 所有権 私道面積 -
借地条件 - 道路位置指定 -
地代 - 不適合接道 -
建築確認番号 - セットバック -
現況 空家 国土法届出 不要
引渡時期 相談 取引態様 一般
設備その他 -
特記事項 -
備考 -
情報更新日 2026/04/16 広告有効期限 2026/04/30
担当者 村永俊郎
電話でお問い合わせ
ヤマダ不動産 都城店 店舗情報
[所在地] 宮崎県都城市吉尾町1番地1 ヤマダデンキ テックランド都城店 1階
[営業時間] 10:00~19:00
[担当] 村永俊郎
Tel0986-57-7788
お気軽にお問い合わせください。