◆ヤマダ不動産 都城店◆

>>PC&スマホサイトへ
下へ
物件詳細(売買)

画像2
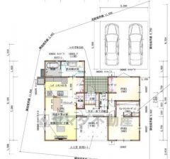
【新築一戸建て】都城市 山之口24号
日豊本線 山之口 10分
宮崎県都城市山之口町花木

■ご成約をいただいた方にヤマダポイント最大10万ポイントをプレゼント!!!
ポイントでお好きな家電をGETできちゃます♪♪♪


価格:2,350万円(税込)

建物面積:77.71m2
土地面積:214.18m2
間取り:2LDK
階数:1階建
建物構造:木造
築年月:2025/04

現況:空家
建ぺい率:60%
容積率:200%
土地権利:所有権
建築確認番号:
駐車場:
学校:-

物件コード:109342
取引態様:仲介
公開日:2025/10/12
広告有効期限:2025/10/26

0986-57-7788
物件のお問合せ
お問合せにあたってのご注意

上へ

トップページ

(c)有限会社日信不動産