◆ヤマダ不動産 都城店◆

>>PC&スマホサイトへ
下へ
物件詳細(売買)

画像2 画像3 画像4 画像5 画像6 画像7 画像8 画像9 画像10 画像11 画像12 画像13 画像14 画像15 画像16 画像17 画像18 画像19 画像20 画像21 画像22 画像23
【中古一戸建て】都城市高城町穂満坊 (現況販売)
日豊本線 山之口 52分
宮崎県都城市高城町穂満坊(地図)

■ご成約をいただいた方にヤマダポイント最大10万ポイントをプレゼント!!!
ポイントでお好きな家電をGETできちゃます♪♪♪

価格:2,500万円(税込)

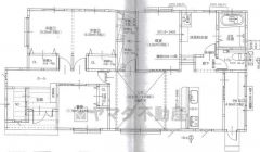
建物面積:101.65m2
土地面積:365.41m2
間取り:4LDK
階数:1階建
建物構造:木造
築年月:2019/06

現況:空家
建ぺい率:
容積率:
土地権利:所有権
建築確認番号:
駐車場:
学校:-

物件コード:104152
取引態様:一般
公開日:2025/10/12
広告有効期限:2025/10/26

0986-57-7788
物件のお問合せ
お問合せにあたってのご注意

上へ

トップページ

(c)有限会社日信不動産